| Fuse Location | Fuse Rating | Protected Component |
|---|---|---|
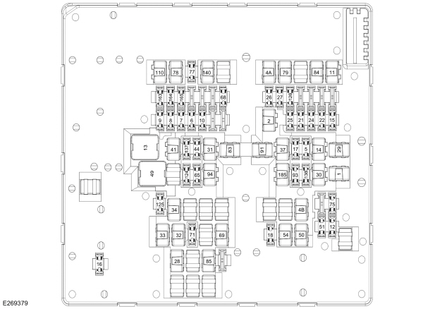
| 1 | 40 A | Body control module. |
| 2 | 30 A | Body control module. |
| 4A | 20 A | Fuel pump - diesel. |
| 4B | 20 A | Fuel pump - gasoline. |
| 5 | 10 A | Data link connector. |
| 6 | 15 A | Powertrain control module - gasoline. |
| 20 A | Powertrain control module - diesel. | |
| 7 | 10 A | Powertrain control module. |
| 8 | 15 A | Powertrain control module. |
| 9 | 20 A | Powertrain control module. |
| 10 | 10 A | Powertrain control module - gasoline. |
| 11 | 30 A | Starter motor. |
| 12 | 10 A | Air conditioning clutch. |
| 13 | 40 A | Blower motor. |
| 14 | 20 A | Auxiliary heater control module. |
| 15 | 20 A | Horn. |
| 16 | 20 A | Rear window washer pump. |
| 17 | 5 A | Lumbar assembly. |
| 18 | 20 A | Headlamp washer pump. |
| 21 | 10 A | Headlamp leveling. |
| 22 | 5 A | Electronic power assist steering. |
| 24 | 10 A | Powertrain control module. |
| 25 | 10 A | Front parking aid camera. Rear view camera. Blind spot information system. Reverse gear. |
| 26 | 15 A | Transmission control module - diesel. |
| 27 | 10 A | Electronic stability control. |
| 28 | 40 A | Electronic stability control valve. |
| 29 | 60 A | Electronic stability control pump. |
| 30 | 25 A | Driver power seat. |
| 31 | 25 A | Passenger power seat. |
| 32 | 20 A | Auxiliary power point. |
| 33 | 20 A | Auxiliary power point. |
| 34 | 20 A | Auxiliary power point. |
| 37 | 20 A | Moonroof. |
| 41 | 30 A | Power liftgate. |
| 44 | 10 A | Stoplamp switch. |
| 49 | 60 A | Cooling fan. |
| 50 | 30 A | Heated back light. |
| 54 | 20 A | Electronic limited slip differential - gasoline. |
| 65 | 20 A | Transmission control module - diesel. |
| 68 | 20 A | Steering column lock. |
| 69 | 30 A | Windshield wipers. |
| 71 | 20 A | Rear window wiper. |
| 75 | 10 A | Mass air flow and intake air temperature sensor - gasoline. |
| 77 | 10 A | Windshield heated washer jets. Heated windshield relay. |
| 78 | 40 A | Left-hand heated windshield element. |
| 79 | 40 A | Right-hand heated windshield element. |
| 83 | 40 A | Auxiliary heater. |
| 84 | 60 A | Auxiliary heater. |
| 85 | 40 A | Auxiliary heater. |
| 91 | 40 A | Trailer tow module. |
| 93 | 5 A | Headlamps. |
| 94 | 20 A | Heated seats. |
| 110 | 30 A | Water-in-fuel sensor - diesel. Diesel fuel heater. |
| 124 | 5 A | Rain sensor. |
| 126 | 5 A | Dosing control unit - diesel. |
| 136 | 15 A | Amplifier. |
| 137 | 15 A | Amplifier. |
| 140 | 60 A | Glow plugs - diesel. |
| 163 | 15 A | Reductant dosage control module. |
| 164 | 10 A | Interior door controls - diesel. |
| 165 | 15 A | Tank heater - diesel. |
| 185 | 20 A | Power windows. Moonroof. |
| Fuse Location | Fuse Rating | Protected Component |
|---|---|---|
| 1 | 5 A | Restraints control module. |
| 2 | 5 A | In-vehicle temperature and humidity sensor. |
| 3 | 10 A | Parking assist control module. |
| 4 | 10 A | Ignition switch. Push button ignition switch. |
| 5 | 20 A | Central locking system. |
| 6 | 10 A | Moonroof. |
| 7 | 30 A | Right-hand mirror switch. Right-hand front power windows. |
| 8 | 5 A | Headlamp control module. |
| 9 | 5 A | Passenger airbag deactivation indicator. Auto-dimming interior mirror. Front parking aid camera. |
| 10 | 10 A | Head up display module. Wireless accessory charging module. |
| 11 | 5 A | Telematics modem. |
| 12 | 5 A | Central security module. |
| 13 | 15 A | Child safety locks. Fuel filler door. Central locking system. |
| 14 | 30 A | Left-hand mirror switch. Left-hand front power windows. |
| 15 | 15 A | Steering wheel module. |
| 16 | 15 A | Adaptive damping module. |
| 17 | 15 A | Voice control. Audio unit. |
| 18 | 7.5 A | Power liftgate. Hands-free liftgate actuation module. |
| 19 | 7.5 A | Battery back-up sounder. |
| 20 | 10 A | Anti-theft alarm horn. |
| 21 | 7.5 A | Climate control. E-shifter module. |
| 22 | 7.5 A | Steering wheel module. Instrument cluster. Data link connector. |
| 23 | 20 A | Audio unit. |
| 24 | 20 A | Not used (spare). |
| 25 | 30 A | Not used (spare). |
| Fuse Location | Fuse Rating | Protected Component |
|---|---|---|
| 1 | 15 A | Ignition system. |
Your input is valuable in helping us improve our Owner's Manual. Thank you for taking the time to provide your feedback.
| Country | Phone | |
|---|---|---|
| United States | 1-800-392-3673 (FORD) | |
| Canada | 1-800-565-3673 (FORD) | |
| Mexico | 1-800-719-8466 | |
| Guam | 1-800-392-3673 (FORD) | |
| North Mariana Islands | apemcrc@ford.com | |
| Puerto Rico | (800) 841-3673 | prcac@ford.com |
| US Virgin Islands | (800) 841-3673 | prcac@ford.com |
| Country | Phone | |
|---|---|---|
| Algeria | nafcrc@ford.com | |
| Angola | ssacrc@ford.com | |
| Benin | ssacrc@ford.com | |
| Botswana | ssacrc@ford.com | |
| Burkina FASO | ssacrc@ford.com | |
| Burundi | ssacrc@ford.com | |
| Cameroon | ssacrc@ford.com | |
| Cape Verde | ssacrc@ford.com | |
| Central African Republic | ssacrc@ford.com | |
| Chad | ssacrc@ford.com | |
| Comoros | ssacrc@ford.com | |
| Dem Republic of Congo | ssacrc@ford.com | |
| Djibuti | ssacrc@ford.com | |
| Egypt | nafcrc@ford.com | |
| Equitorial Guinea | ssacrc@ford.com | |
| Eritrea | ssacrc@ford.com | |
| Ethiopia | ssacrc@ford.com | |
| Gabon | ssacrc@ford.com | |
| Gambia | ssacrc@ford.com | |
| Ghana | ssacrc@ford.com | |
| Guinea | ssacrc@ford.com | |
| Guinea-Bissau | ssacrc@ford.com | |
| Ivory Coast | ssacrc@ford.com | |
| Kenya | ssacrc@ford.com | |
| Liberia | ssacrc@ford.com | |
| Libya | nafcrc@ford.com | |
| Madagascar | ssacrc@ford.com | |
| Malawi | ssacrc@ford.com | |
| Mauritania | ssacrc@ford.com | |
| Mauritius | ssacrc@ford.com | |
| Morocco | nafcrc@ford.com | |
| Mozambique | ssacrc@ford.com | |
| Namibia | ssacrc@ford.com | |
| Niger | ssacrc@ford.com | |
| Nigeria | ssacrc@ford.com | |
| Republic of Congo | ssacrc@ford.com | |
| Rwanda | ssacrc@ford.com | |
| Sao Tome and Principe | ssacrc@ford.com | |
| Senegal | ssacrc@ford.com | |
| Sychelles | ssacrc@ford.com | |
| Sierra Leone | ssacrc@ford.com | |
| South Africa | 860011022 | fordcrc2@ford.com |
| South Sudan | ssacrc@ford.com | |
| Swaziland | ssacrc@ford.com | |
| Tanzania | ssacrc@ford.com | |
| Togo | ssacrc@ford.com | |
| Tunisia | nafcrc@ford.com | |
| Uganda | ssacrc@ford.com | |
| Zambia | ssacrc@ford.com | |
| Zimbabwe | ssacrc@ford.com | |
| American Somoa | apemcrc@ford.com | |
| Australia | (13 FORD) 13 3673 | foacust1@ford.com |
| Bangladesh | apemcrc@ford.com | |
| Bhutan | apemcrc@ford.com | |
| Brunei | apemcrc@ford.com | |
| Cambodia | apemcrc@ford.com | |
| Fiji | apemcrc@ford.com | |
| French Polynesia | apemcrc@ford.com | |
| India | apemcrc@ford.com | |
| Indonesia | apemcrc@ford.com | |
| Japan | apemcrc@ford.com | |
| Laos | apemcrc@ford.com | |
| Macao | apemcrc@ford.com | |
| Malaysia | apemcrc@ford.com | |
| Marshall Islands | apemcrc@ford.com | |
| Mongolia | apemcrc@ford.com | |
| Myanmar | apemcrc@ford.com | |
| Nepal | apemcrc@ford.com | |
| New Caledonia | apemcrc@ford.com | |
| New Zealand | 0800 367 369 (FORDNZ) | fnzcust@ford.com |
| Pakistan | apemcrc@ford.com | |
| Palau | apemcrc@ford.com | |
| Papua New Guinea | apemcrc@ford.com | |
| Philippines | 02-88669408 | emailus@ford.com |
| Singapore | apemcrc@ford.com | |
| South Korea | 82-2-1600-6003 | infokr1@ford.com |
| Sri Lanka | apemcrc@ford.com | |
| Tahiti | apemcrc@ford.com | |
| Thailand | 1383 | fordthai@ford.com |
| Timor Leste | apemcrc@ford.com | |
| Vanuatu | apemcrc@ford.com | |
| Vietnam | 1800588888 | fordvn@ford.com |
| Wallis and Futuna | apemcrc@ford.com | |
| Western Somoa | apemcrc@ford.com | |
| Afghanistan | menacac@ford.com | |
| Bahrain | menacac@ford.com | |
| Iraq | menacac@ford.com | |
| Israel | 08-9139995 | service1@kelekmotors.co.il |
| Jordan | menacac@ford.com | |
| Kuwait | 965 1 898900 | menacac@ford.com |
| Lebanon | menacac@ford.com | |
| Oman | menacac@ford.com | |
| Qatar | menacac@ford.com | |
| Saudi Arabia | 8008443673 | menacac@ford.com |
| Syria | menacac@ford.com | |
| United Arab Emirates | 80004441066 | menacac@ford.com |
| Yemen | menacac@ford.com |
| Country | Phone | |
|---|---|---|
| China-Imported Vehicles | 400-690-1886 | |
| China-CAF | 951995 | |
| China-JMC | 400-003-1111 | |
| China-Lincoln | 400-988-6789 | |
| Taiwan | 0800-032100 | |
| Hong Kong | (852) 3768-4898 |
| Country | Phone | |
|---|---|---|
| Argentina | 0800-888-3673 | |
| Bolivia | Contact Your Local Ford Distributor | |
| Brazil | 0800-703-3673 | central@ford.com |
| Chile | Contact Your Local Ford Distributor | |
| Colombia | Contact Your Local Ford Distributor | |
| Ecuador | Contact Your Local Ford Distributor | |
| French Guiana | Contact Your Local Ford Distributor | |
| Guyana | Contact Your Local Ford Distributor | |
| Paraguay | Contact Your Local Ford Distributor | |
| Peru | Contact Your Local Ford Distributor | |
| Suriname | Contact Your Local Ford Distributor | |
| Uruguay | Contact Your Local Ford Distributor | |
| Venezuela | Contact Your Local Ford Distributor |
| Country | Phone | |
|---|---|---|
| Albania | Contact Your Local Ford Distributor | |
| Andorra | Contact Your Local Ford Distributor | |
| Armenia | Contact Your Local Ford Distributor | |
| Austria | 01 20 609 2424 | kundenz@ford.com |
| Azerbaijan | Contact Your Local Ford Distributor | |
| Belarus | Contact Your Local Ford Distributor | |
| Belgium | 32 2 700 67 76 | custfobe@ford.com |
| Bosnia | Contact Your Local Ford Distributor | |
| Bulgaria | Contact Your Local Ford Distributor | |
| Croatia | Contact Your Local Ford Distributor | |
| Cyprus | Contact Your Local Ford Distributor | |
| Czech Republic | 800 3673 29 | zakaznik@ford.com |
| Denmark | 43 68 2000 | crcdk@ford.com |
| Estonia | 372 6710 060 | ford@infoauto.ee |
| Falkland Islands | Contact Your Local Ford Distributor | |
| Finland | 09 725 22022 | palvelut@ford.com |
| France | 0800 005 005 | crcfr@ford.com |
| Georgia | Contact Your Local Ford Distributor | |
| Germany | 0221 9999 2 999 | kunden@ford.com |
| Girbraltar | Contact Your Local Ford Distributor | |
| Greece | 216 900 88 99 | info11@ford.com |
| Hungary | +36 1 7777 555 | Contact Your Local Ford Distributor |
| Iceland | Contact Your Local Ford Distributor | |
| Ireland | 1800 771 199 | crcirela@ford.com |
| Italy | 800 22 44 33 | tu@ford.com |
| Kazakhstan | Contact Your Local Ford Distributor | |
| Latvia | +371 67303020 | |
| Liechtenstein | Contact Your Local Ford Distributor | |
| Lithuania | 370 5216 8226 | forduzklausos@inchcape.lt |
| Luxembourg | +352 248 71 800 | custfobe@ford.com |
| Macedonia | Contact Your Local Ford Distributor | |
| Malta | Contact Your Local Ford Distributor | |
| Moldova | Contact Your Local Ford Distributor | |
| Monaco | Contact Your Local Ford Distributor | |
| Montenegro | Contact Your Local Ford Distributor | |
| Netherlands | 70 7703 777 | klanten@ford.com |
| Norway | 47 66819739 | infonor@ford.com |
| Poland | 48 22 522 27 27 | kontakty@ford.com |
| Portugal | 800 210 373 | clientes@ford.com |
| Romania | 40 312298798 | crcro@ford.com |
| Russia | Contact Your Local Ford Distributor | |
| San Marino | Contact Your Local Ford Distributor | |
| Serbia | Contact Your Local Ford Distributor | |
| Serbia and Montenegro | Contact Your Local Ford Distributor | |
| Slovakia | Contact Your Local Ford Distributor | |
| Slovenia | Contact Your Local Ford Distributor | |
| South Georgia | Contact Your Local Ford Distributor | |
| Spain | 900 80 70 90 | crcspain@ford.com |
| Sweden | 08-593 66 333 | fordkund@ford.com |
| Switzerland | 044 511 14 45 | assistch@ford.com |
| Turkey | Contact Your Local Ford Distributor | |
| Ukraine | Contact Your Local Ford Distributor | |
| United Kingdom | 020 3564 4444 | UKCRC1@ford.com |
| Country | Phone | |
|---|---|---|
| Anguilla | (313) 594-4857 | expcac@ford.com |
| Antigua | (313) 594-4857 | expcac@ford.com |
| Aruba | (313) 594-4857 | expcac@ford.com |
| Bahamas | (313) 594-4857 | expcac@ford.com |
| Barbados | (313) 594-4857 | expcac@ford.com |
| Bermuda | (313) 594-4857 | expcac@ford.com |
| Bonaire and St. Eustatius | (313) 594-4857 | expcac@ford.com |
| Cayman Islands | (313) 594-4857 | expcac@ford.com |
| Curacao | (313) 594-4857 | expcac@ford.com |
| Dominica | (313) 594-4857 | expcac@ford.com |
| Dominican Republic | (313) 594-4857 | expcac@ford.com |
| Grenada | (313) 594-4857 | expcac@ford.com |
| Haiti | (313) 594-4857 | expcac@ford.com |
| Jamaica | (313) 594-4857 | expcac@ford.com |
| Martinique | (313) 594-4857 | expcac@ford.com |
| Montserrat | (313) 594-4857 | expcac@ford.com |
| St. Kitts and Nevis | (313) 594-4857 | expcac@ford.com |
| St. Lucia | (313) 594-4857 | expcac@ford.com |
| St. Martin | (313) 594-4857 | expcac@ford.com |
| St. Vincent and the Grenadines | (313) 594-4857 | expcac@ford.com |
| Trinidad and Tobago | (313) 594-4857 | expcac@ford.com |
| Turks and Caicos | (313) 594-4857 | expcac@ford.com |
| British Virgin Islands | (313) 594-4857 | expcac@ford.com |
| Netherlands Antilles | (313) 594-4857 | expcac@ford.com |
| Belize | (313) 594-4857 | expcac@ford.com |
| Costa Rica | (313) 594-4857 | expcac@ford.com |
| El Salvador | (313) 594-4857 | expcac@ford.com |
| Guatemala | (313) 594-4857 | expcac@ford.com |
| Honduras | (313) 594-4857 | expcac@ford.com |
| Nicaragua | (313) 594-4857 | expcac@ford.com |
| Panama | (313) 594-4857 | expcac@ford.com |